Totara Lands

Hillside Mangawhai

2 Morepork Lane, Mangawhai

  4 Bedrooms | 2 Bathrooms |  182 SQM Floor | 600 SQM Land 

Price by Negotiation 

Previous
Next

DESCRIPTION

Time to leave the city behind and move to the beach! This NEW CONSTRUCTION 4-bedroom home in Mangawhai will be ready for you to move in later this year.

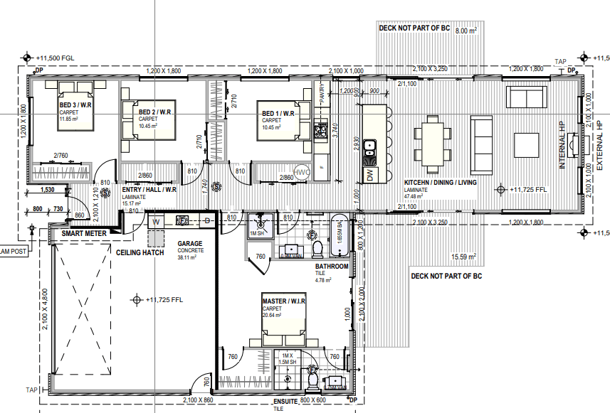
Step inside the front door to find a wonderful open layout, with the dining area, kitchen and lounge in one large space anchored by beautiful laminate floors. Your kitchen features a pantry as well as a large center island with bar-top seating. The well-thought-out split floorplan puts the master suite (walk-in robe + 3-piece bathroom) on one side of the house, with three guest rooms and a large hallway bathroom on the other.

At the rear of the home, you’ll find the all-important laundry/mudroom, which offers access to the elevated back deck. You will have plenty of room to play & entertain in the rest of the backyard, as the sloping homesite allows you to enjoy lots of North-facing sun at the bottom of the hill.

Mangawhai is a fantastic beach town, and it has attracted the attention of former city-dwellers looking for a more serene place to work remotely. In fact, the beach is just a 15-minute stroll from your front door (or a very short drive!). You’ll also be close to schools, shopping, golfing and a public boat ramp. Jump on the new motorway in no time too! Get it under contract now and you could be enjoying next summer at your own beach house!

Detail

FEATURES

FLOORPLAN

Location

CONTACT US

All images are an artist impression or of similar completed homes and may vary from finished product.