Totara Lands

Minutes from the New Motorway

10 Hikuwai Lane, Warkworth

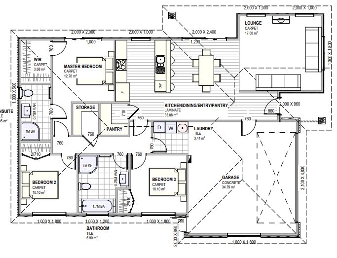
  3 Bedrooms | 2 Bathrooms |  160 SQM Floor | 559 SQM Land 

Previous
Next

DESCRIPTION

Start fresh in the new year in a brand new home! This modern, low-profile facade belies the large home within, which has an awesome floorplan that stretches back to include 3 big bedrooms and lots of room for everyone in the family to spread out.

As you enter from the garage, you can walk just a few steps into the kitchen and drop all your shopping bags in the walk-in pantry. While making dinner, you can stand at your sink in the huge peninsula (with seating for a crowd) and keep an eye on one kid doing homework at the dining room table as other family members play games/watch TV in the big adjacent lounge.

The bedrooms are all located at the back, with the master getting its own wing (walk-in robe, 3-piece bath) and access to the side porch. The other two guest rooms share a big hallway bath.

A professional designer has chosen coordinating finishes [flooring, tile, fixtures, color palette and counters] throughout the home, but there’s still time to choose your favorites too!

This wonderful planned community comes with lush landscaping and mature trees and is located 10 minutes from the beach. Your new home is also just a 2-minute drive from the new motorway that will be completed within 18 months for an easy commute to Auckland.

Detail

FEATURES

FLOORPLAN

Location

CONTACT US

All images are an artist impression or of similar completed homes and may vary from finished product.